A VILLAGE in north east Dorset could see 11 affordable homes built if plans are approved.
The site at land south of Common Road in Sixpenny Handley has been “carefully selected” to deliver the homes – and is currently being used as a car park for residents and staff at a nearby school.
Plans were put together by the Sixpenny Handley Community Land Trust (CLT) who said that as the site, owned by Dorset Council, is part of an established village area with amenities nearby the application is a “genuinely sustainable development”.
They added that the need for affordable housing for local people and those nearby is “indisputable”.
The homes, which would be a mix of accommodation for families, couples and single people, would be managed by a housing association.
READ MORE: Huge solar farm could become one of Dorset’s biggest renewable projects
READ MORE: “A blow to the south west”: MP reacts to plans to revoke Stonehenge tunnel permission
READ MORE: Plans to expand Dorset village after 19 home plan submitted
“In considering the matter of the number of homes proposed for this site the CLT have been mindful of two significant issues,” the plans said.

The application site Picture: Google
“The first is that there are more people on the waiting list for these new homes than can be accommodated.
“The second is that building cost analysis has shown that any reduction in numbers that might reduce the density brings with it disproportionate cost of construction given the significant infrastructure costs required for this site regardless of the number of homes given the various constraints.”
The applicant said it is not possible to create a new vehicular access point to the site as Common Road to the north is classified as a distributor road, meaning that additional access points or junctions are not permitted within 90 metres of the existing car park entrance.

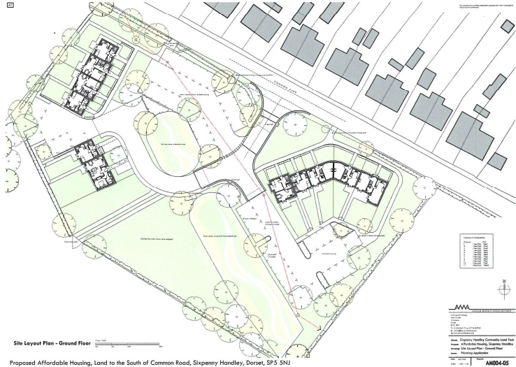
The proposed site layout plan Picture: Adrian Morris Architecture
They added: “Consequently, as the boundary along Common Road, is not long enough to facilitate the formation of a new access junction, access to both the existing carpark and the new development will have to be shared.
“This provided an opportunity to improve the existing access to the carpark with regards visibility, turning and highway safety.
“The development proposal sees the retention of the Aster housing carparking in a similar location but reconfigured to provide a more appropriately designed facility with trees and hedge planting to soften its visual impact and provide some shade too.”
To view and comments on the plans, visit the planning section of Dorset Council’s website and search reference P/FUL/2025/05981.
Click here to stay updated with all the latest plans submitted across Dorset.



Leave a Reply