FRESH plans to build up to 46 homes in Gillingham have sparked a wave of objections from residents concerned about traffic, pressure on services and the loss of green space.
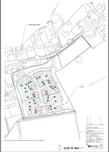
An outline application submitted to Dorset Council seeks permission for up to 42 homes (P/OUT/2026/00955) on land south of Bay Road, including highways works, drainage, public open space and green infrastructure.
A separate but adjacent outline application for four homes (P/OUT/2026/01000) has also been lodged.

(Picture: Gillingham Town Council)
But many residents say the town is already struggling, pointing to struggling GP surgeries, pharmacy closures, flooding risks and a lack of public transport.
Darren Garrett said: “Gillingham is growing faster than the infrastructure and it’s not coping now.
“We need shops, doctors’, chemists. Bay Road will also not cope with the building lorries making it miserable for the ones that live there.”
Concerns about infrastructure were echoed by Zoe Roberts, who said: “No doctors appts, queues at chemists, senior school is bursting at the seams.
“Traffic is horrendous. Crime is rocketing. Enough! Stop! Respect what little green space is left and find another town to destroy.”
Hannah Forster added: “We already have houses built that are not sold. Our GPs and pharmacies are already struggling let alone the schools and transport.”

(Picture: Google)
A consultation is under way on the council’s website, where residents must comment on each application separately if they wish their views to be considered on both proposals.
Gillingham Town Council has also shared the plans via social media, encouraging the public to have their say.



Leave a Reply